Description
Situation
The village of Tytherington is situated a short drive south of M5 Junction 14 - ideal for commuters to Bristol or Cheltenham/Gloucester. The nearby local centres of Thornbury and Wotton-under-Edge provide excellent shopping facilities and amenities. The village has a community shop with post office, a public house, church and a playgroup in the village hall. The excellent village website www.tytherington.com provides a wealth of further information.Accommodation & Services
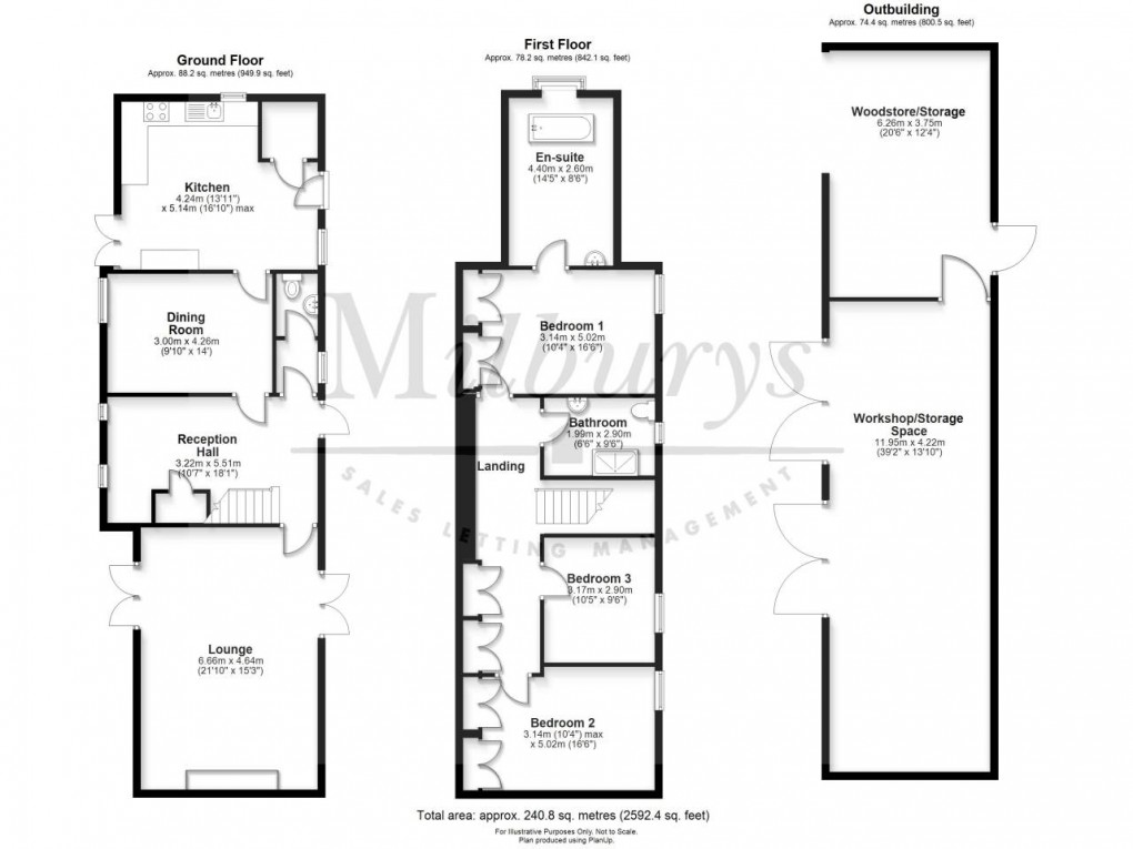
Detached - Three Double Bedrooms - With Workshop/Storage - Modern Kitchen With Cooker/Hob - Utility Cupboard - Dining Room - Reception Room With Exposed Stone Walls (Under Stairs Cupboard) - Cloakroom - Lounge With Wood Burning Stove - Upstairs Landing With Fitted Cupboard - Master Bedroom With Built In Cupboards & En-Suite Modern Bathroom - Bedroom Two With Fitted Cupboards- Bedroom Three With Fitted Storage - Modern Shower Room - Outside You Have A Private Gated Garden With Parking For Two Or More Cars - Large Workshop/Storage Area With Double Doors - Separate Covered Woodstore - Orchard To Side For Tenants Use - Please Note That There Is A Storage Barn That Isn't Included Within The Tenancy - The Owners Will Provide 'Starlink Equipment' For The Internet Access If The Tenants Wish To Use It - UnfurnishedLocal Authority & Council Tax
Band F South Gloucestershire Council www.southglos.gov.ukMobile & Broadband Availability
To check broadband and mobile phone coverage please visit Ofcom - ofcom.org.uk/phones-telecoms-and-internet/advice-for-consumers/advice/ofcom-checkerDisclaimer
Milburys Estate Agents Ltd, their clients and any joint agents give notice that they have not tested any apparatus, equipment, fixtures, fittings, heating systems, drains or services and so cannot verify they are in working order or fit for their purpose. Interested parties are advised to obtain verification from their surveyor or relevant contractor. Statements pertaining to tenure are also given in good faith and should be verified by your legal representative. Digital images may, on occasion, include the use of a wide angle lens. Please ask if you have any queries about any of the images shown, prior to viewing. Where provided, floor plans are shown purely as an indication of layout. They are not scale drawings and should not be treated as such.
Floorplan
EPC
AMENITIES
RAILWAY STATIONS
To discuss this property please call our Thornbury branch:
Market your property
with Milburys
Book a market appraisal for your property today. Our virtual options are still available if you prefer.
