'The Old Police Station'
Olveston, South Gloucestershire
Prices From Guide £775,000
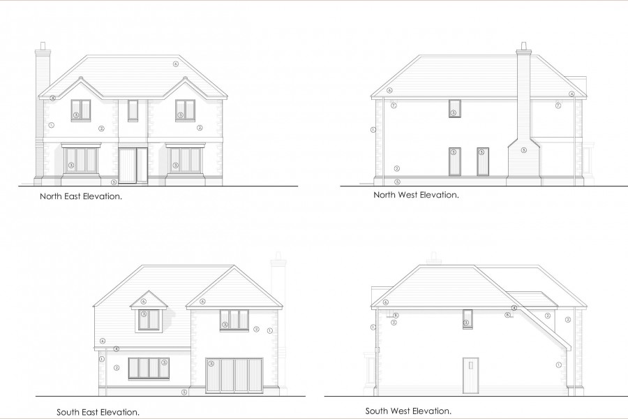
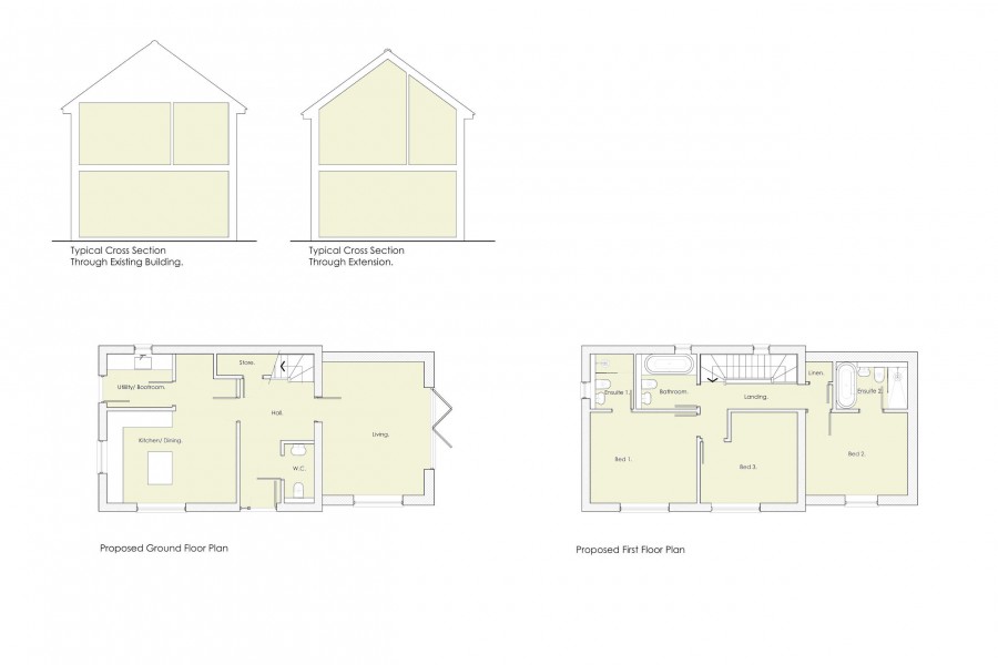
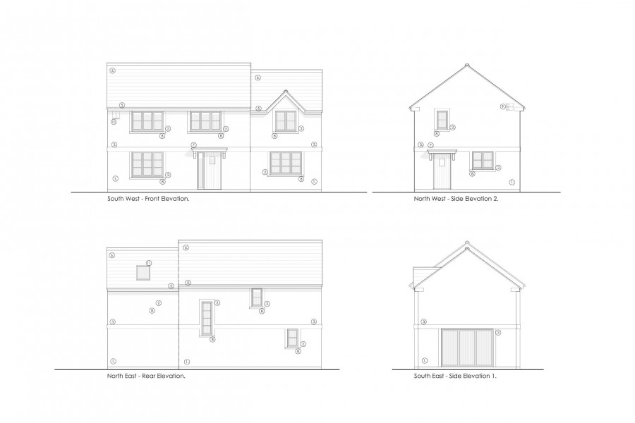
A unique and rare opportunity to own a piece of village history, extending and re-modelling ‘The Old Police Station’ for 21st century life, also creating a stunning and substantial brand-new 202m2 detached house within the garden (please refer to South Gloucestershire Planning Reference P24/00926/F).
Gallery
'The Old Police Station', New Road, Olveston, South Gloucestershire
£775,000A unique and rare opportunity to own a piece of village history, extending and re-modelling ‘The Old Police Station’ for 21st century life, also creating a stunning and substantial brand-new 202m2 detached house within the...
Property Locations
