Description
Situation
Brabazon is Bristol’s bold new neighbourhood, transforming the historic Filton Airfield into a vibrant, sustainable community designed by award-winning architects. Perfectly positioned in North Bristol with excellent transport links—including nearby Bristol Parkway and a planned new train station—Brabazon blends striking modern homes, green spaces, and a thriving cultural scene. With the Aerospace Bristol Museum on its doorstep and the upcoming YTL Arena set to become a major entertainment hub, Brabazon offers an exciting lifestyle choice, all just minutes from the city centreAccommodation & Services
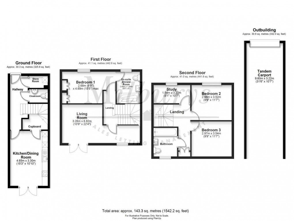
Designed by award-winning architects - Located in Brabazon's thriving Hanger District - 3-Storey House - Three bedrooms plus a dedicated study - Family Bathroom with shower & separate cloakroom - Higher-than-average ceilings for a spacious feel - First Floor Patio Balcony - Tandem Carport Garage with EV charging - Gas C/H - Double Glazing - Solar panels for improved energy efficiencyLocal Authority & Council Tax
South Gloucestershire Council Council Tax Band - DDisclaimer
Milburys Estate Agents Ltd, their clients and any joint agents give notice that they have not tested any apparatus, equipment, fixtures, fittings, heating systems, drains or services and so cannot verify they are in working order or fit for their purpose. Interested parties are advised to obtain verification from their surveyor or relevant contractor. Statements pertaining to tenure are also given in good faith and should be verified by your legal representative. Digital images may, on occasion, include the use of a wide angle lens. Please ask if you have any queries about any of the images shown, prior to viewing. Where provided, floor plans are shown purely as an indication of layout. They are not scale drawings and should not be treated as such.
Floorplan
EPC
AMENITIES
RAILWAY STATIONS
To discuss this property please call our Thornbury branch:
Market your property
with Milburys
Book a market appraisal for your property today. Our virtual options are still available if you prefer.
