Description
- Fantastic Residential Development Opportunity
- Village Location, Convenient For Thornbury, A38, M5, M4
- 'Erection of 3no. dwellings (outline)'
- Planning Ref: P25/01592/O (Dated: 17/10/2024)
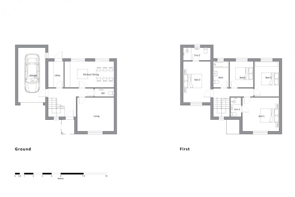
- Three Detached Houses, With Integral Garages
- Generous Gardens And Off-Street Parking
- Four Bedrooms, Two En-Suite, Family Bathroom
- Living Room, Kitchen/Dining Room
- Utility Room, Cloakroom
- Access From Old Gloucester Road
Fantastic residential development opportunity! (See video) Highly desirable village location, from a no-through residential road off Alveston Hill. A level plot convenient for village amenities including primary and secondary schools, cricket club, local shops and hotel/pub/restaurant, plus the market town of Thornbury a short drive to the north. Planning Ref: P25/01592/O (Dated 17/10/2025) ‘Erection of 3no. dwellings (outline) with access, layout and scale to be determined and all other matters reserved’. The submitted plans indicate three detached houses, with integral garages, generous gardens and off-street parking. The accommodation for each includes four bedrooms, two en-suite shower rooms and a family bathroom. Downstairs space includes entrance hall, cloakroom, living room, kitchen/dining room, utility room and an integral garage. Vehicular access is shared by all three units from Old Gloucester Road. All viewing strictly by prior appointment.
Directions
The site is located on the corner of Alveston Hill, the B4061 and Old Gloucester Road. Neighbouring landmark is The Ship Hotel- 'What3Words' - 'obviously.good.again'.
Area Description
Alveston is a village north of Bristol, some 4.3 miles from the M4/M5 interchange at Almondsbury, 7.2 miles from Bristol Parkway Station and 10.5 miles from the City Centre. The Severn Bridge and the M48 (M4/South Wales) are 4.6 miles to the west - ideal for commuters. It boasts a secondary school, www.marlwood.com and St. Helen's Primary School, currently rated ‘Outstanding’ by Ofsted, a useful parade of shops - including an award-winning butcher, a cafe, hairdresser and post office, plus a public house and a hotel. The market town and local centre of Thornbury is 1.3 miles to the north.
Disclaimer
Milburys Estate Agents Ltd, their clients and any joint agents give notice that they have not tested any apparatus, equipment, fixtures, fittings, heating systems, drains or services and so cannot verify they are in working order or fit for their purpose. Interested parties are advised to obtain verification from their surveyor or relevant contractor. Statements pertaining to tenure are also given in good faith and should be verified by your legal representative. Digital images may, on occasion, include the use of a wide angle lens. Please ask if you have any queries about any of the images shown, prior to viewing. Where provided, floor plans are shown purely as an indication of layout. They are not scale drawings and should not be treated as such.
Floorplan
AMENITIES
RAILWAY STATIONS
To discuss this property call our Thornbury branch:
Market your property
with Milburys
Book a market appraisal for your property today. Our virtual options are still available if you prefer.
