Description
- Detached Family Home with Flexible Layout
- Immaculate Condition Throughout
- Fantastic Commuter Links to Bristol and Bath Via the Ring Road
- 4 Double Bedrooms
- 3 Bathrooms and Guest WC
- Large Private Rear Garden with Raised Terrace
- Huge Driveway with Ample Parking and Secure Electric Gates
- Detached Double Garage
- Gas Central Heating and Private Drainage
- Council Tax Band - F - South Gloucestershire Council
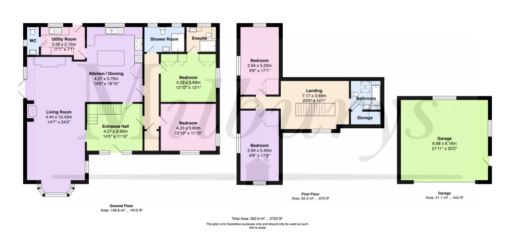
Sitting proudly in this very generous plot, you will find this immaculately presented family home in a sought after non-estate location - extremely handy for those looking on the outskirts of the city with countryside surrounds and an easy commute in! "The Brooklands" is found in Cuckoo Lane, treelined with a collection of individual properties. Accessed via electric gates you are greeted with a HUGE block paved sweeping driveway that provides extensive parking. This takes you to a detached double garage. Moving to the property, there is a large welcoming entrance hall, from here you will find a light and bright living room with bay window and a feature fireplace with log burner. This opens up to a generous dining area area with a beautiful fitted bar area (complete with wine fridge and additional dishwasher!) From here there is an opening into a stunning kitchen. Showcasing a large central island, a wealth of cupboards and worktop space with attractive granite tops and integrated appliances - all overlooking the rear garden. You will then find a handy utility room and guest WC. The ground floor also boasts 2 large double bedrooms, one with an ensuite shower room and fitted wardrobes and a beautiful additional shower room that services the other bedroom. Moving upstairs, a light filled galleried landing takes you to 2 additional double bedrooms, both with fitted wardrobes, then a final family bathroom. Externally the owners have installed a superb wrap around composite deck with glass balustrade and covered entertaining area. This allows for elevated views across the lush green lawned garden beyond. This substantial space enjoys privacy and a green backdrop, plus pedestrian access into the detached double garage. A beautiful home indeed!
Area Description
The village of Winterbourne Down enjoys picturesque countryside surrounds and encompasses the Frome Valley Walkway, which follows the Frome River as it passes through woodland and fields. Winterbourne Down has a mix of properties, many individual ones with charm and character. There are two local pubs within striking distance whilst nearby Winterbourne High Street has a selection of local shops. In addition to nursery and toddler groups there is Elm Park and St Michaels C of E Primary Schools, plus Winterbourne Academy (state secondary school). There is good commuting due to it being (approx) 6.9 miles from Bristol City centre, 2.7 miles from Parkway Train Station and 2.2 miles to Junction 1 of the M32 / M4 Junction 19.
Directions
From Badminton Road in Coalpit Heath continue towards the Ring Road, passing the turning for Kendleshire Golf Club. Before you reach the last big roundabout (just prior to the motorway bridge) take the last turning on the right into Cuckoo Lane. Continue round the right hand bend and No.28 (Brooklands) will be found on your right. (There may be temporary traffic lights at the start of Cuckoo Lane as it is currently affected by the new motorway bridge construction).
Disclaimer
Milburys Estate Agents Ltd, their clients and any joint agents give notice that they have not tested any apparatus, equipment, fixtures, fittings, heating systems, drains or services and so cannot verify they are in working order or fit for their purpose. Interested parties are advised to obtain verification from their surveyor or relevant contractor. Statements pertaining to tenure are also given in good faith and should be verified by your legal representative. Digital images may, on occasion, include the use of a wide angle lens. Please ask if you have any queries about any of the images shown, prior to viewing. Where provided, floor plans are shown purely as an indication of layout. They are not scale drawings and should not be treated as such.
Floorplan
EPC
AMENITIES
RAILWAY STATIONS
To discuss this property call our Chipping Sodbury branch:
Market your property
with Milburys
Book a market appraisal for your property today. Our virtual options are still available if you prefer.
