Description
- Detached Four Bedroom Family Home
- Remainder Of An NHBC 10 Year Warranty - Dated 2020
- Generous Dual Aspect Lounge/Diner
- Modern Kitchen/Diner/Family Room
- Principal Bedroom With A Dual Aspect And Ensuite Shower Room
- Modern Family Bathroom
- Enclosed Rear Garden With Decking Area
- Cloakroom And Utility
- Garage And Parking For Two Cars
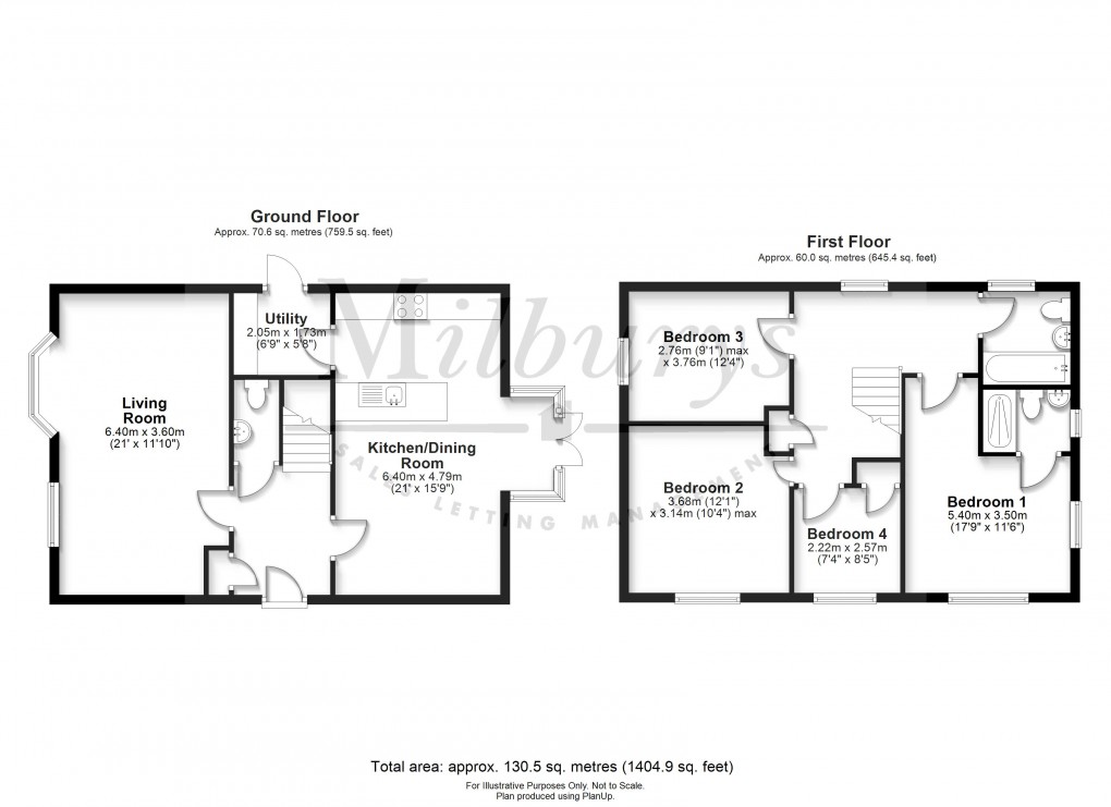
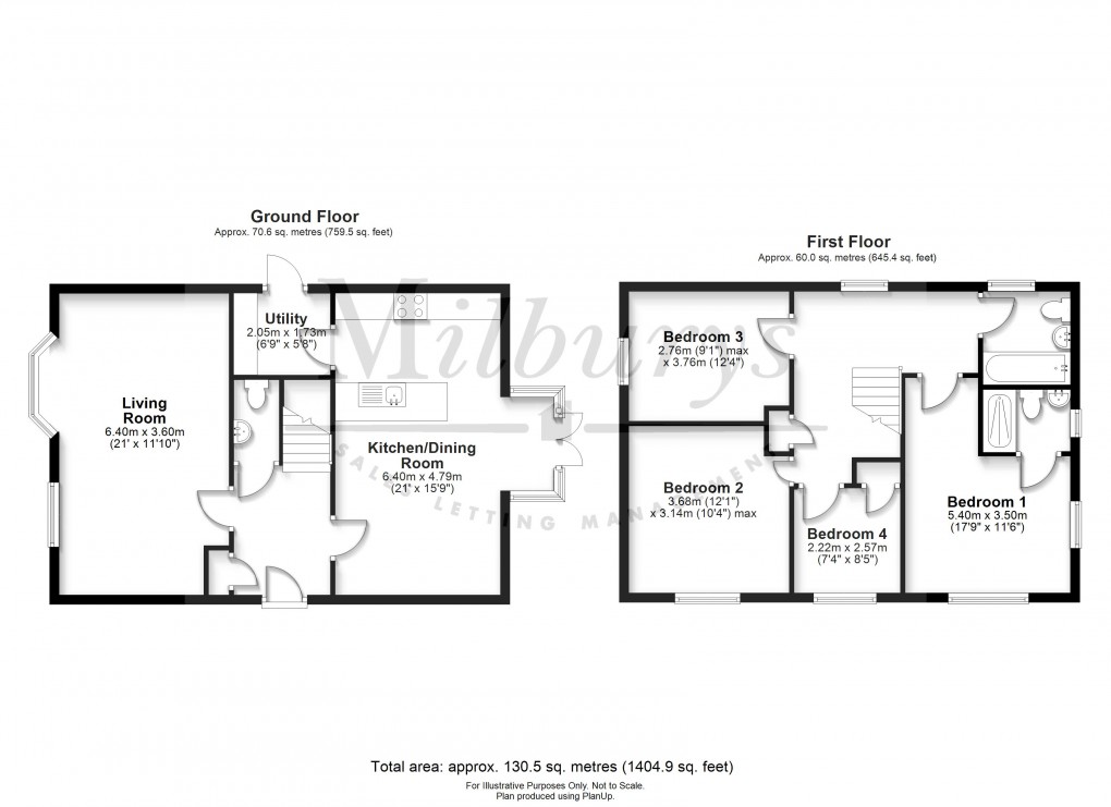
A beautiful, spacious detached family home located on a much loved Thornbury development, offing fantastic living accommodation, a clean neutral aesthetic and the remainder of an NHBC 10 year warranty. With countryside walks from your doorstep and a simple stroll to Thornbury town centre, it's a must see! Entering through the front door into the sizable hallway, to the left you will find the generous dual aspect living room, with its bright and airy feel and warming tones. To the right, the kitchen/diner/family room, with a much loved 'shaker' style, smart fitted kitchen and separate utility. The glazed bay French doors allow for light to flood the room and provide access out to the enclosed rear garden. The cloakroom completes the floor and further enhances the practical family living on offer. To the first floor, four bedrooms, three doubles and one single. The principal bedroom has a dual aspect and ensuite shower room. The fitted family bathroom is clean and fresh with a modern design. Externally, a generous enclosed rear garden with a decking area perfect for outside dining. Further benefits include garage and parking, UPVC double glazing and gas central heating. Book your viewing today!
Area Description
Thornbury is a thriving market town to the north of the City of Bristol and the M4/M5 interchange, with excellent commuting links via the motorway network and by rail from Bristol Parkway Station (Paddington/South Wales). The High Street offers a wide variety of shops, cafes, pubs and restaurants. Other facilities include the leisure centre, golf course and library, plus open community spaces, parks and sports grounds/clubs. The town is blessed with a number of primary and junior schools, plus The Castle secondary school (www.the castleschool.org.uk) which is situated close to Thornbury’s Tudor Castle, a luxury hotel.
Directions
Entering Thornbury from the north, take the first right into Butt Lane, then fourth left into Barley Fields. Stay on this road continuing over the bridge, you will bend round to the right and No.116 can be found directly in front of you, side facing.
Disclaimer
Milburys Estate Agents Ltd, their clients and any joint agents give notice that they have not tested any apparatus, equipment, fixtures, fittings, heating systems, drains or services and so cannot verify they are in working order or fit for their purpose. Interested parties are advised to obtain verification from their surveyor or relevant contractor. Statements pertaining to tenure are also given in good faith and should be verified by your legal representative. Digital images may, on occasion, include the use of a wide angle lens. Please ask if you have any queries about any of the images shown, prior to viewing. Where provided, floor plans are shown purely as an indication of layout. They are not scale drawings and should not be treated as such.
Floorplan

EPC
AMENITIES
RAILWAY STATIONS
To discuss this property call our Thornbury branch:
Market your property
with Milburys
Book a market appraisal for your property today. Our virtual options are still available if you prefer.