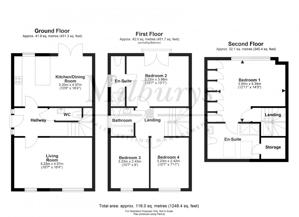
Description
- Brand-New Detached Village Home
- Unique Design, With Elevated Country Views
- Smart Contemporary Accommodation Over Three Floors
- Living Room With Floor-To -Ceiling Windows
- Stunning Fitted Kitchen/Dining Room
- Integrated Appliances, Marble Work-Tops And Peninsular
- Four Bedrooms, Two En-Suite Shower Rooms, Cloakroom
- Excellent Eco-Values, Upvc Double-Glazing
- Air-Source Heating (Under-floor on ground floor)
- 10-Year ICW Warranty For Piece Of Mind
Come and view this brand-new detached village home, one of a pair, built to a unique design with elevated country views from the rear bedroom windows. It provides smart contemporary accommodation over three floors, including the spacious living room at the front of the house with its floor to ceiling windows. The stunning fitted kitchen/dining room runs across the rear, with integrated appliances, marble work-tops, a peninsular/breakfast bar and French doors to the garden behind. The central hallway and staircase run up to the top of the house. On the first floor are three generous bedrooms, two at the front, the bathroom in the middle, plus the larger bedroom at the rear – complete with en-suite shower room and Juliette balcony. At the top of the house is the main bedroom, with built-in wardrobes/storage, an en-suite shower room and great views over the gardens and farmland behind. Excellent eco-credentials include Upvc double-glazing and electric air-source heating - under-floor downstairs, radiators above. And it all comes with a ten-year ICW warranty for peace of mind. Moving outside, within the front stone wall there is block-paved off-street parking and bin storage. The side gate leads to the level rear garden which has a paved patio, freshly laid lawn lawn, an outside tap and a shed. All beautifully finished off and ready for someone to make it their home!
Area Description
Rudgeway is situated astride the A38 approximately 3.4 miles north of the M4/M5 interchange. Ideal for commuting north, south, east or west - Parkway Station (London Paddington/South Wales) is approximately 6 miles to the south. Nearby schools include St Helen’s Primary School and Marlwood Secondary School, both in the nearby village of Alveston, plus Tockington Manor Preparatory School and Castlefell School in Rudgeway itself. The local centre and market town of Thornbury lies 2.5 miles to the north, with its bustling high street, a variety of shops and supermarkets, cafes and restaurants, a leisure centre with swimming pool, plus a golf course. The Mall at Cribbs Causeway is just one junction further south along the M5, as are local attractions, Wild Space and The Wave.
Directions
Travelling north on the A38, after entering Rudgeway and passing the layby on your left, The Barley will be the second of two new-build homes on your right-hand side.
Disclaimer
Milburys Estate Agents Ltd, their clients and any joint agents give notice that they have not tested any apparatus, equipment, fixtures, fittings, heating systems, drains or services and so cannot verify they are in working order or fit for their purpose. Interested parties are advised to obtain verification from their surveyor or relevant contractor. Statements pertaining to tenure are also given in good faith and should be verified by your legal representative. Digital images may, on occasion, include the use of a wide angle lens. Please ask if you have any queries about any of the images shown, prior to viewing. Where provided, floor plans are shown purely as an indication of layout. They are not scale drawings and should not be treated as such.
Floorplan
AMENITIES
RAILWAY STATIONS
To discuss this property call our Thornbury branch:
Market your property
with Milburys
Book a market appraisal for your property today. Our virtual options are still available if you prefer.
