Description
Situation
Thornbury is a thriving market town to the north of the City of Bristol and the M4/M5 interchange, with excellent commuting links via the motorway network and by rail from Bristol Parkway Station (Paddington/South Wales). The High Street offers a wide variety of shops, cafes, pubs and restaurants. Other facilities include the leisure centre, golf course and library, plus open community spaces, parks and sports grounds/clubs. The town is blessed with a number of primary and junior schools, plus The Castle secondary school (www.castle.gloucs.sch.uk) which is situated on the edge of open countryside close to Thornbury’s Tudor Castle, now a luxury hotel.Accommodation & Services
Walks From The Doorstep - Set Out Over Two Floors - Entrance Hall - Cloakroom - Study/Play Room - Lounge - Kitchen/Dining/Family Space With French Doors To The Garden - Integrated Appliances - Separate Utility Room - Master Bedroom With En-Suite With Fitted Wardrobes- Family Bathroom With Shower Over Bath - Garage - Off-Street Parking - Enclosed Rear Garden With Patio Area - Gas Central Heating - Double-Glazing - Unfurnished - (EPC-B)Local Authority & Council Tax
South Gloucestershire Council www.southglos.gov.uk Council Tax Band EMobile & Broadband Availability
To check broadband and mobile phone coverage please visit Ofcom - ofcom.org.uk/phones-telecoms-and-internet/advice-for-consumers/advice/ofcom-checkerDisclaimer
Milburys Estate Agents Ltd, their clients and any joint agents give notice that they have not tested any apparatus, equipment, fixtures, fittings, heating systems, drains or services and so cannot verify they are in working order or fit for their purpose. Interested parties are advised to obtain verification from their surveyor or relevant contractor. Statements pertaining to tenure are also given in good faith and should be verified by your legal representative. Digital images may, on occasion, include the use of a wide angle lens. Please ask if you have any queries about any of the images shown, prior to viewing. Where provided, floor plans are shown purely as an indication of layout. They are not scale drawings and should not be treated as such.
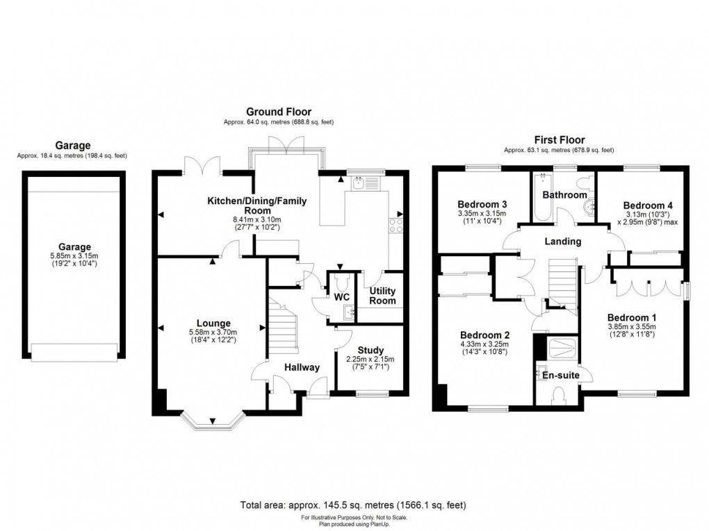
Floorplan
AMENITIES
RAILWAY STATIONS
To discuss this property please call our Thornbury branch:
Market your property
with Milburys
Book a market appraisal for your property today. Our virtual options are still available if you prefer.
