Description
- Impressive Elevated Setting Towards The End of a No-Through Road, Offering Stunning Far-Reaching Views Across Wotton.
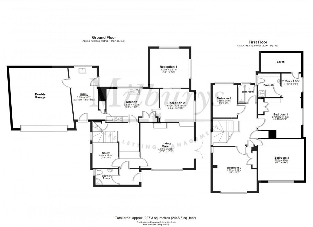
- Three Generous Double Bedrooms - Extended Principal Bedroom With Fitted Wardrobes An En-Suite Shower Room And Generous Eaves Storage
- Mature, Well-Kept Grounds of Circa 0.309 Acres Featuring a Summer House, Greenhouse and Two Patio Seating Areas
- Smart Generous Sized Kitchen With Integrated Appliances, And a Pretty Outlook Over The Rear Garden
- Living Room With French Doors to Patio , Along With Two Further Reception Rooms
- Within Catchment Area and Walking Distance to The British School, Bluecoat Primary School and Katharine Lady Berkeley's Secondary School
- Close Proximity To Beautiful Countryside, The Cotswold Way and Wotton's High Street
- Double Garage with Ample Vehicular Parking, Enclosed Behind Gates
- Utility Room, Downstairs Shower Room and Separate Study
- Stroud District Council Tax Band F
There is no more fitting a name than ‘Sunnyside’ for this beautiful, elevated detached family home. Discreetly positioned toward the end of Wotton Crescent, with a no-through road position renowned for its far-reaching views across the rooftops of Wotton-under-Edge and the hills of the Cotswold Escarpment. Though tranquil and secluded, it lies a gentle stroll from Wotton’s historic High Street. Set behind barn-style gates, this handsome home is found on grounds of approximately 0.309 acres, framed by the beautiful scenery of fields and Warren Woods behind. Mature, well-tended gardens create a tapestry of flowers, trees and shrubs. Towards the end, a delightful summer house perfectly captures the setting sun over the town, while a vegetable garden is found at the very rear. Inside, the home offers a thoughtful and flexible layout, which has been adapted to allow a long-standing residence throughout life. A practical boot room leads you into the home, connecting to a downstairs shower room conveniently placed after muddy countryside walks on the nearby Cotswold Way. A welcoming entranceway leads to a bright and well-appointed kitchen with plenty of storage and work surface space, overlooking the garden. Adjacent to the kitchen, a handy utility room with access to the rear leads to the integral garage. The ground floor also features an impressive sitting room with a feature fireplace and French doors opening onto one of two seating areas, flooding the room with natural light. A further two reception rooms offer space for formal dining, a snug, a playroom or a second office, with the first connecting from the entrance hall. Upstairs, a generous landing leads to four bedrooms – three of which are generous doubles. The principal bedroom enjoys far-reaching views and is served by its own en-suite shower room. The rest of the rooms are serviced by the family bathroom, consisting of a white suite. 'Sunnyside' is a residence suited to those looking for countryside calm with a connection to the friendly community of Wotton-under-Edge.
Directions
Heading out of Wotton in the direction of Hillesley, continue along Wortley Road and into Wortley Terrace. Wotton Crescent is located on your left handside, just after the row of red bricked terraced cottages. You will find Sunnyside towards the end of this private road on your left hand side.
Area Description
Known as the “Gateway to the Cotswolds,” Wotton-under-Edge is a historic market town dating back to Saxon times, situated on the edge of the Cotswold Escarpment. Lying within the Area of Outstanding Natural Beauty, Wotton-under-Edge was ranked as the happiest place to live in Gloucestershire by a survey in 2025 (https://www.gazetteseries.co.uk/news/25577652.wotton-under-edge-happiest-place-live-gloucestershire/). The High Street is lined with traditional stone buildings that house a variety of independent shops, cafés, a Tesco Express, a Co-operative mini-supermarket, The Falcon Steakhouse, and three public houses. The town is also home to the Ram Inn – a famous 13th-century public house now closed to visitors – as well as its own independent cinema, which has been operating since 1911. Junction 14 of the M5 lies approximately 5.1 miles away, offering convenient access for commuters to Bristol, Gloucester, and Cheltenham. Tetbury, home to the King’s residence, is just 10.1 miles from Wotton-under-Edge. Around 7 miles away, Cam and Dursley Railway Station provides rail connections to both Bristol and Gloucester until the opening of Charfield Railway Station, expected in Spring 2027 (https://beta.southglos.gov.uk/charfield-train-station/). For primary education, children can attend The Great British School or Bluecoat Primary School, with additional options available in nearby villages such as Charfield, Tortworth, and Hillesley. The prestigious Katharine Lady Berkeley’s Secondary School is located between the neighbouring village of Kingswood and the outskirts of Wotton-under-Edge, making it easily accessible on foot. Visitors may discover this charming town while walking the Cotswold Way. Additional leisure activities include a golf club and a refurbished open-air swimming pool, which operates seasonally.
Disclaimer
Milburys Estate Agents Ltd, their clients and any joint agents give notice that they have not tested any apparatus, equipment, fixtures, fittings, heating systems, drains or services and so cannot verify they are in working order or fit for their purpose. Interested parties are advised to obtain verification from their surveyor or relevant contractor. Statements pertaining to tenure are also given in good faith and should be verified by your legal representative. Digital images may, on occasion, include the use of a wide angle lens. Please ask if you have any queries about any of the images shown, prior to viewing. Where provided, floor plans are shown purely as an indication of layout. They are not scale drawings and should not be treated as such.
Floorplan
EPC
AMENITIES
RAILWAY STATIONS
To discuss this property call our Wotton-under-Edge branch:
Market your property
with Milburys
Book a market appraisal for your property today. Our virtual options are still available if you prefer.
